040_Du domo
Lieu : -
Programme : Micro-habitat
MOA : Impact design competition
Surface : 22m²
Budget : N.C
Mission: Concours ( 2nd winner ︎)
Statut: Concours
Année: 2021
Travaux: -
Lieu : -
Programme : Micro-habitat
MOA : Impact design competition
Surface : 22m²
Budget : N.C
Mission: Concours ( 2nd winner ︎)
Statut: Concours
Année: 2021
Travaux: -
Du domo: Deux maisons
Qui a dit "Tiny" ? Le principe de la maison pliante est de permettre aux utilisateurs d'agrandir leur espace en fonction de la saison, de la météo et du contexte dans lequel elle se trouve. Avec le changement climatique et des températures de plus en plus extrêmes, nous pensons que cette maison doit pouvoir s'adapter à ces conditions.
En hiver, la maison devient une tiny house autosuffisante, équipée d’un poêle à bois, de panneaux solaires, d’un système de récupération d'eau de pluie et de deux bouteilles de gaz pour les cas où la lumière ne permet pas de produire suffisamment d’électricité.
Elle bénéficie d'ouvertures traversantes dans toutes les pièces. Elle est construite avec des murs à ossature bois, isolés avec de la laine de chanvre et bardés de bois. La maison se protège du froid et conserve la chaleur intérieure.
Au printemps et en été, la chaleur augmente, et l'on vit davantage à l'extérieur. La maison s'agrandit en conséquence.
Les façades se transforment et deviennent un sol. Elles créent ainsi des espaces supplémentaires entre l’intérieur et l’extérieur. Ces espaces sont protégés par une tente étanche, qui protège de la pluie, du soleil et des moustiques. Un système de vérins motorisés permet leur déploiement. La maison reste autonome en été et bénéficie des mêmes dispositifs solaires et hydrauliques qu’en hiver.
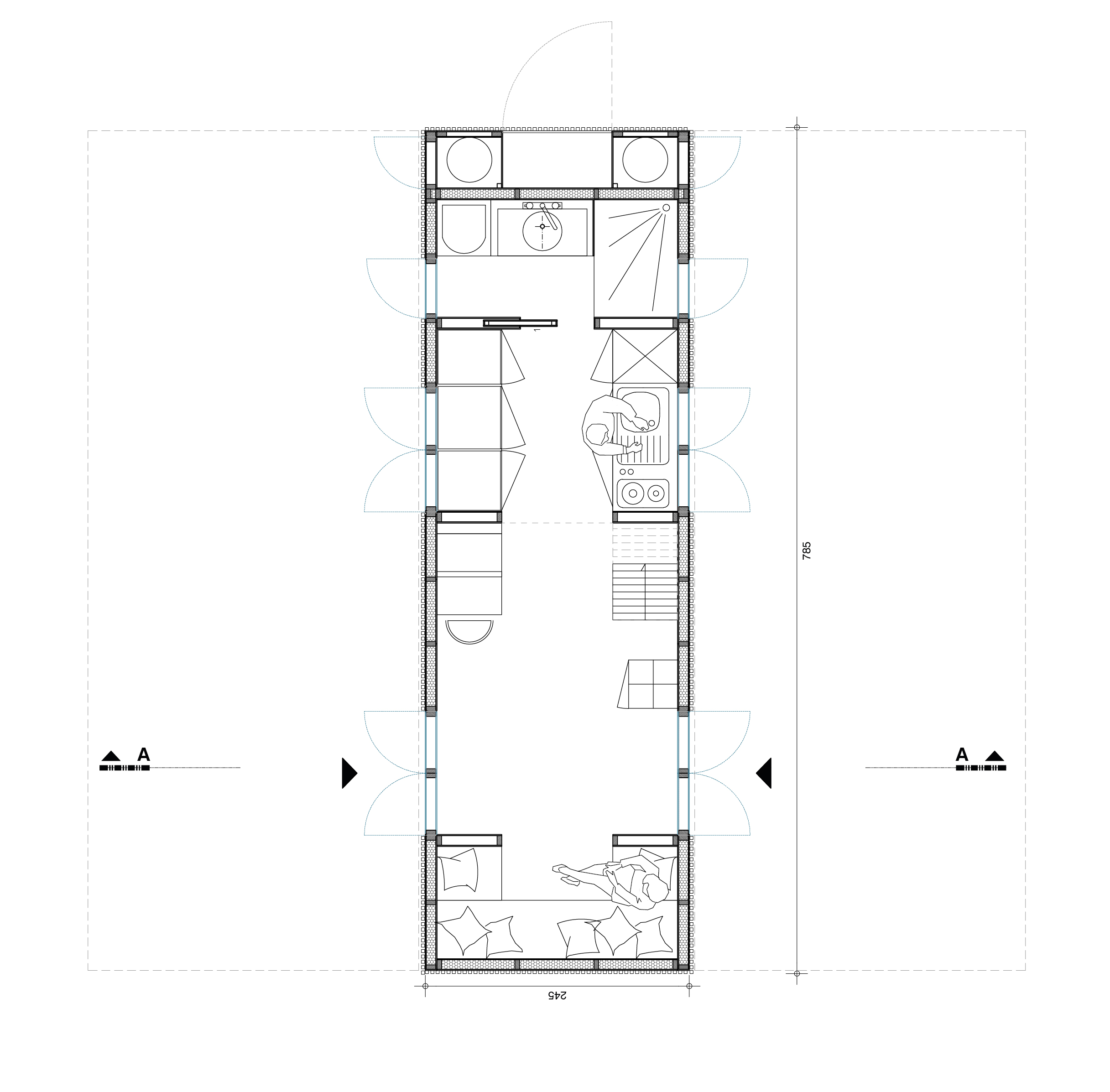
La maison est installée sur une remorque de 7,80 m de long et 2,45 m de large.
La maison est mobile. Son plan est simple : au fond, près de l’attelage de la remorque, se trouve un local technique pour le stockage du bois, du gaz, de l'eau et du système électrique. À côté de ce local, il y a une salle de bain avec une toilette sèche, une douche et un petit lavabo. La cuisine et la salle de bain se trouvent sous la mezzanine qui abrite le lit. Une table dans le salon peut être déplacée et étendue lorsqu'il y a des invités. Un grand canapé complète le salon et peut se transformer en lit double pour accueillir deux personnes supplémentaires. En été, la maison double presque de taille. Elle se déploie et passe de petite à grande.
Qui a dit "Tiny" ? Le principe de la maison pliante est de permettre aux utilisateurs d'agrandir leur espace en fonction de la saison, de la météo et du contexte dans lequel elle se trouve. Avec le changement climatique et des températures de plus en plus extrêmes, nous pensons que cette maison doit pouvoir s'adapter à ces conditions.
En hiver, la maison devient une tiny house autosuffisante, équipée d’un poêle à bois, de panneaux solaires, d’un système de récupération d'eau de pluie et de deux bouteilles de gaz pour les cas où la lumière ne permet pas de produire suffisamment d’électricité.
Elle bénéficie d'ouvertures traversantes dans toutes les pièces. Elle est construite avec des murs à ossature bois, isolés avec de la laine de chanvre et bardés de bois. La maison se protège du froid et conserve la chaleur intérieure.
Au printemps et en été, la chaleur augmente, et l'on vit davantage à l'extérieur. La maison s'agrandit en conséquence.
Les façades se transforment et deviennent un sol. Elles créent ainsi des espaces supplémentaires entre l’intérieur et l’extérieur. Ces espaces sont protégés par une tente étanche, qui protège de la pluie, du soleil et des moustiques. Un système de vérins motorisés permet leur déploiement. La maison reste autonome en été et bénéficie des mêmes dispositifs solaires et hydrauliques qu’en hiver.
La maison est installée sur une remorque de 7,80 m de long et 2,45 m de large.
La maison est mobile. Son plan est simple : au fond, près de l’attelage de la remorque, se trouve un local technique pour le stockage du bois, du gaz, de l'eau et du système électrique. À côté de ce local, il y a une salle de bain avec une toilette sèche, une douche et un petit lavabo. La cuisine et la salle de bain se trouvent sous la mezzanine qui abrite le lit. Une table dans le salon peut être déplacée et étendue lorsqu'il y a des invités. Un grand canapé complète le salon et peut se transformer en lit double pour accueillir deux personnes supplémentaires. En été, la maison double presque de taille. Elle se déploie et passe de petite à grande.




